您的位置: 中国幕墙网 > 幕墙专区 > 新闻正文

售2.4亿!厚重混凝土与通透幕墙打造“外立面的矛盾艺术”

来源:中国幕墙网收集整理  作者:编辑  日期:2018-2-7
页面功能 [字体: ] [ 打印 ] [ 投稿 ] [ 评论 ] [ 转发 ] [ 啄木鸟 ]
  可能很多人一眼就看出这是,安藤老师在纽约的第一个作品,“152elizabethstreet”,最近全新的顶层复式公寓效果图公开。

  本篇文章内容由[中国幕墙网]编辑部整理发布:

可能很多人一眼就看出这是

安藤老师在纽约的第一个作品

“152 elizabeth street”

最近全新的顶层复式公寓效果图公开

豪华公寓

152 Elizabeth Street

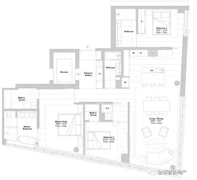
这套顶层复式公寓

有着530平米的室内面积

300平米的露台面积4个卧室、4.5个卫生间

售价3500万美金(约2.4亿人民币)

外墙的栏杆是安藤标志性的混凝土(词条“混凝土”由行业大百科提供)

露台室外有着水幕墙、独立壁炉

室内设计由极简主义设计师

Michael Gabellini 设计完成

延续了原有的项目调性

在朴素的材料构成组合成另一种奢华调调

看来旋转楼梯是顶层复式的标配了

在这里被设计的更佳通透

采用钢制的材质凸显出硬朗的气息

位于纽约的伊丽莎白街152号

可是很多人肯定想不到

这个建筑的前身是这样的

这个公寓住宅项目

由sumaida + khurana开发

安藤老师亲自操刀

这也是他在纽约的第一个设计项目

安藤老师在售楼处

安藤老师的方案除了

使用标志性的现浇混凝土之外

还有整面通透的玻璃幕墙

以及一面17米、30米宽的绿化墙

种植后的这面绿墙

是纽约市最大的绿植墙之一

随着季节变换呈现出不一样的画面

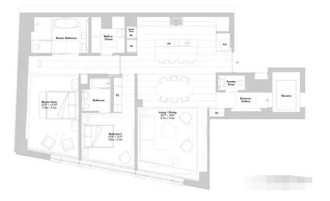
这栋住宅建筑约3000平方米的建筑面积

只有3个户型、共7套公寓

朝西的182平米(3房3卫)

朝东的187平米(2房3卫)

平层公寓386平米(4房4卫)

这7间公寓将于6月份全面开售

目前最贵平层公寓以1520美金被预定

(约合人民币1.04亿)

预计这个项目今年完工

最近室内样板房的完工照片刚刚公开

平层样板房室内设计由著名的设计师

Michael Gabellini设计完成

他的设计将安藤老师的宁静感

延伸进室内空间

他采用白色和橡木的搭配构成房间的主材

用朴素的材料重新定义奢华

目前开放的是2个卧室的样板房

材料的选择经过精心的挑选

黑白灰的材质经典组合

地板采用有着250年历史的丹麦橡木

用蝴蝶榫固定(词条“固定”由行业大百科提供)

技术与美感的结合

更是真材实料的体现

厨房配有顶级品牌Gaggenau厨具

意大利桉木的定制橱柜

以及咖啡色的Fango大理石台面

台面的移动不仅可以拓展出吧台的空间

在不使用时让空间更整洁干净

主卧室的吊顶和墙面

木材构成的线面体块

主卧室浴室的玻璃门

有着超白的玻璃和定制的

主卧室的背景墙面

也是质朴的实木板

纯白色调的主卫生间

台盆柜有着多层的储藏空间

设计师说

“奢华是一个无法确切定义的概念

对我们来说就是如何看待空间和比例”

没有材料和装饰品的堆砌、线条的叠加

一样能设计出真正奢华的居住空间

-END-

门窗幕墙第一手资讯! 上中国幕墙网 news.alwindoor.com 手机访问地址 3g.alwindoor.com

原文地址:http://www.52mqw.com/info/2018-2-7/44299-1.htm
转载时需注明出处:中国幕墙网 点击查看 www.alwindoor.com
我要评论 (已有*人参与评论)
上一篇:2018会涨价吗?当前各种幕墙“设计价格”曝光
    
【回到顶部】
  为了帮助建筑门窗幕墙行业产业链企业更好的认清行业地位和现状,从而提升自身产品品质及服务能力,中国幕墙网以行业媒体领军者的身份,在...
[正文]  [评论]

中国幕墙网版权和免责声明

版权声明: 本网站所有文章版权,归中国幕墙网和作者所共有,未经允许请勿转载。

转载要求: 转载的图片或者文件,链接请不要盗链到本站,且不准打上各自站点的水印,亦不能抹去本站水印。

隐私条款: 除非特别声明,否则文章所体现的任何观点并不代表中国幕墙网。
本站转载或引用文章若涉及版权问题请与我们联系,我们立即将其删除!

月精彩评论集锦
  • 安泰胶不仅在建筑领域品牌认同度非常高,且在集装箱密封胶胶领域全球第一品牌。一个品牌的成长,表面上看是质量长期稳定,而深层的是企业决策、经营管理、企业文化、企业综合实力的体现,安泰25年的深厚底蕴,大品牌不是吹出来的!
    来自 59.41.39.32 的读者对2010幕墙门窗行业产品选用指南的评论
  • 一个地区,某个分类下面,比如华南的胶,入围企业超过10家.根据投票人次和得票数,确定是否设立两个奖项.反之,一个地区,某个分类下面,比如港澳台地区,入围企业总共不超过3家.就取消奖项设置,只做得票数的排名统计
  • 我毕业后就在远大西南公司待了几年。老总们勾心斗角,主设计分奖金赤裸裸歧视人。最后老总们自己出去开公司,大家一拍两散。都走了。
    来自 60.10.10.82 的读者对远大集团 志向远大的评论
  • 一生平安
    来自 182.135.64.76 的读者对四川雅安芦山县发生7.0级地震的评论
  • 国家规范规定,幕墙工程使用的所有预埋件,应使用热镀锌钢件......  请注明哪里有这句话。我不曾见到过。望知情者能赐教。
    来自 222.67.79.10 的读者对玻璃幕墙施工工艺与质量要求浅析的评论
  • 伟昌的铝材我比较满意,我的装饰公司用了12年多了,也没谁说有什么问题的。
    来自 219.129.152.58 的中国幕墙网读者对“晶艺”杯07—08年中国幕墙网大型读者调查活动的评论
  • 在国内硅酮胶市场发展到现在的情况个人觉得还是要选择几家老牌的硅胶生产企业的产品有保障性能是经过市场检验的。对于希望国内设计师更理性的选择国内品牌。
  • 中国就是有钱啊~~~一造就造一大片,造的就是顶级的。。。中国的好多地方温饱都没解决呢。。把这钱分摊一下多好啊!
    来自 60.179.103.82 的年轻的恺撒对北京奥运将成全球玻璃幕墙亮点的评论
知识百科
月热点新闻推荐[TOP10]
月企业关注度排名[幕墙]
月产品人气值排名[幕墙]
客服电话:400-60-54100  传真:0832-2201099 值班电话:15023154960