您的位置: 中国幕墙网 > 幕墙专区 > 新闻正文

收藏:金属、石材、玻璃幕墙!节点施工图100例

来源:中国幕墙网收集整理  作者:编辑  日期:2018-2-9
页面功能 [字体: ] [ 打印 ] [ 投稿 ] [ 评论 ] [ 转发 ] [ 啄木鸟 ]
  

  本篇文章内容由[中国幕墙网]编辑部整理发布:

  构造节点详图

 

 

 

  图3-16 耳子与幕墙框格体系螺蚊联接节点

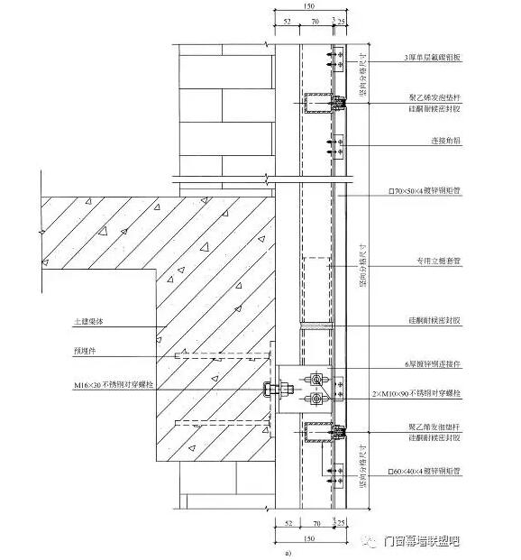
  图3-17a铝板幕墙(词条“铝板幕墙”由行业大百科提供)标准竖剖节点

  图3-17b铝板幕墙标准横剖节点

  图3-18 外插式单层板与幕墙隔构体系节点

  图3-19 开洞铝板节点

  图3-20 开洞铝板节点

  图3-21 铝板幕墙节点

  图3-22a 铝板幕墙横剖典型节点

  图3-22b 铝板幕墙纵剖典型节点

  图3-23a 铝板幕墙标准纵剖节点

  图3-23b 铝板幕墙标准横剖节点

  图3-24a 铝板标准竖向节点

  图3-24b 铝板标准横向节点

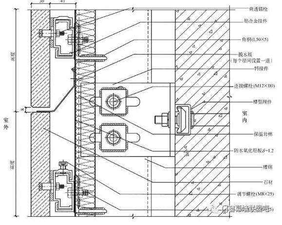
  图3-25a 单元式层间连接节点

 

  图3-25b 玻璃翼节点

  图3-25c 转角节点

  图3-26 转角节点

  图3-27 铝板包角节点

  图3-28 铝板幕墙阳角转角节点

  图3-29 女儿墙单层铝板压顶构造

  图3-30 铝板幕墙女儿墙收口节点图

  图3-39a 铝板横剖节点

  图3-39b 铝板竖剖节点

  图3-40a 铝板横剖节点

  图3-40b 铝板竖剖节点

  图3-41a 铝板横剖节点

  图3-41b 铝板竖剖节点

  图3-42a 铝复合板幕墙标准横剖节点

  图3-42b 铝复合板幕墙标准纵剖节点

  图3-42c 铝复合板幕墙标准纵剖节点

  图3-43 铝板做滴水线节点

  图3-44 铝板包女儿墙节点

  图3-46铝板阴角节点

 

  图3-45 铝板包大玻璃橱节点

  图3-47 铝板阳角节点

  图3-52 蜂窝铝板标准节点

  图3-53 蜂窝铝板标准节点

  图3-54 蜂窝铝板标准节点

  图3-55 蜂窝铝板标准节点

  图3-64 复合连接

  图3-71 背栓在异型部位的连接情况

  图3-72 敞缝

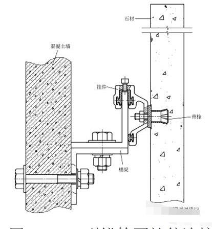
  图3-74a 钢销石材幕墙节点构造

  图3-74b 销钉

  图3-75a 石材横向剖面节点

  图3-75b 石材纵向剖面节点

  图3-75c 石材横向剖面节点

  图3-75d 石材纵向剖面节点

  图3-75e 石材幕墙底部收口节点

  图3-76a 石材横剖节点

  图3-76b 石材竖剖节点

  图3-77 石材节点

  图3-78 石材节点

  图3-79 石材节点

  图3-80a 石材幕墙节点

  图3-80b 石材幕墙节点

  图3-81a 石材横剖节点

  图3-81b 石材竖剖节点

  图3-82a 石材幕墙节点

  图3-82b 石材幕墙节点

  图3-83a 石材横剖节点

  图3-83b 石材竖剖节点

  图3-84a 石材标准横剖节点

  图3-84a 石材标准纵剖节点

  图3-85a 石材干挂标准横剖节点

  图3-85b 石材干挂标准纵剖节点

 

  图3-86a 石材幕墙横剖节点

  图3-86b 石材幕墙竖剖节点

  图3-87a 石材横剖节点

  图3-87a 石材横剖节点、

  图3-88a 石材横剖节点

  图3-88b 石材纵剖节点

  图3-89a 石材横剖节点

  图3-89b 石材纵剖节点

  图3-90 石材幕墙节点

  图3-91a 石材标准横剖面节点详图

  图3-91b 石材标准纵剖面节点详图

  图3-91c 石材面板与单元组件连接节点

  图3-92a 石材面板与单元组件连接节点

  图3-92b 石材面板与单元组件连接节点

  图3-92c 石材面板与单元组件连接节点

  图3-93a 石材面板与单元组件连接节点

  图3-93b 石材面板与单元组件连接节点

  图3-94 石材与包女儿墙节点

  图3-95 石材做滴水线节点

  图3-96 石材与隐框窗下口连接节点

  图3-97 石材与隐框窗上口连接节点

  图3-98 石材与隐框窗立杆连接节点

  图3-99 石材装饰线条节点

 

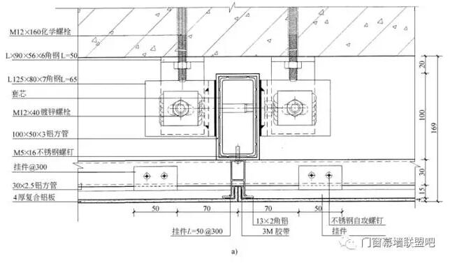
  图3-100 石材与幕墙立杆连接节点

  图3-101石材与幕墙横杆杆连接节点

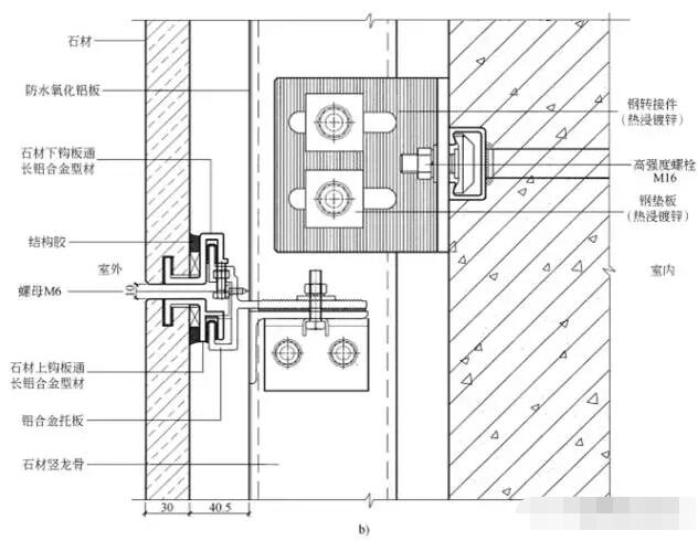
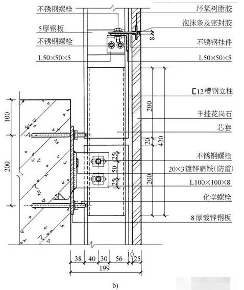
  图3-102 背栓石材节点

  图3-103 干挂花岗石幕墙阳角节点

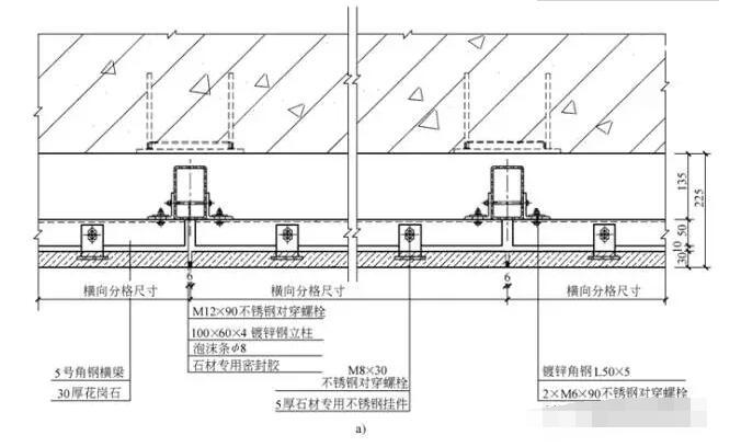
  图3-104 干挂花岗石幕墙135阳角节点

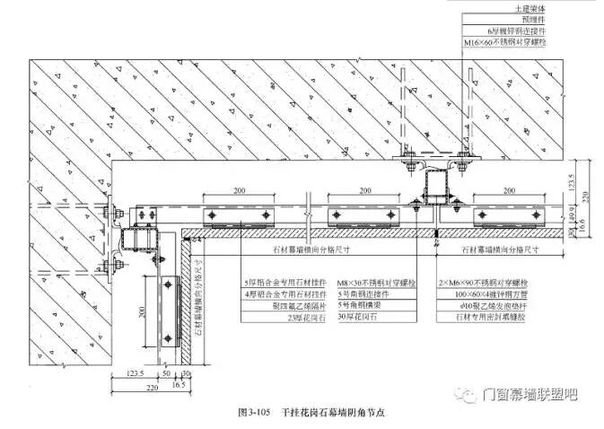
  图3-105 干挂花岗石幕墙阴角节点

  图3-106 铝合金百页窗竖剖节点

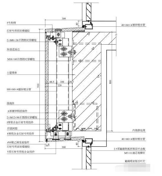
  图3-107 石材包梁与百页窗连接竖剖节点

  图3-108 吊顶与石材包柱相连节点

  图3-109 石材包柱底部节点

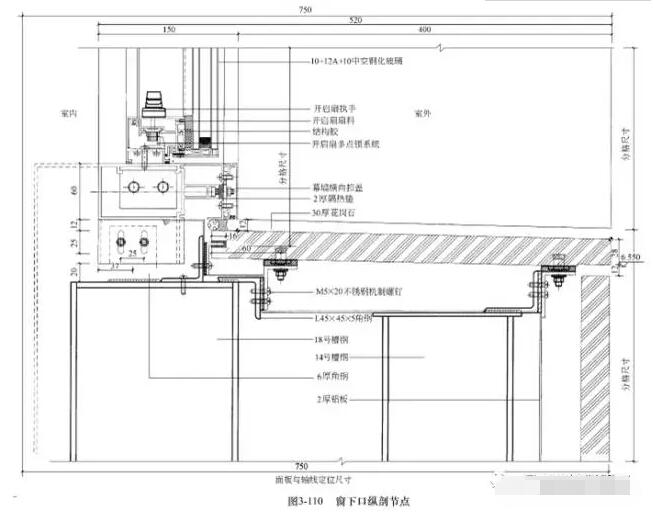
  图3-110 窗下口纵剖节点

  图3-111 石材与窗相接节点

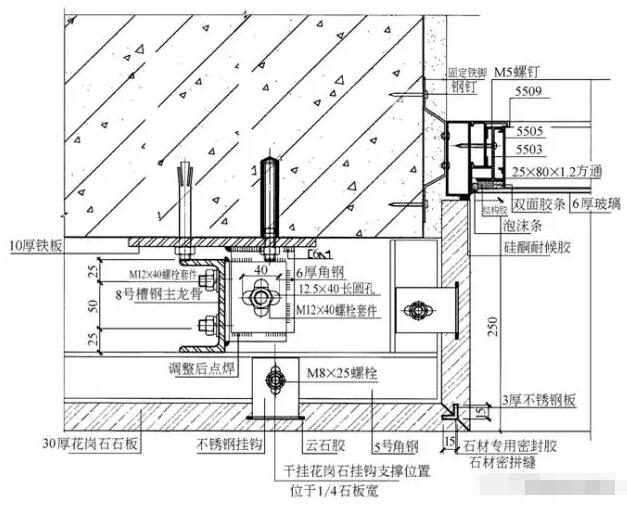
  图3-112 干挂石材节点

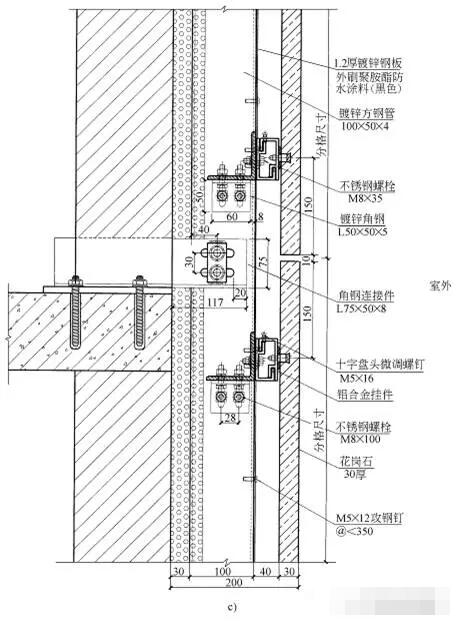
  图3-113 石材包柱竖剖节点

  图3-114 石材包柱平剖节点

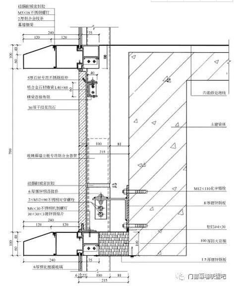
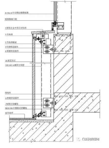
  图3-115 玻璃幕墙与石材幕墙顶部收口连接节点

  图3-116 石材幕墙与女儿墙收口节点

 

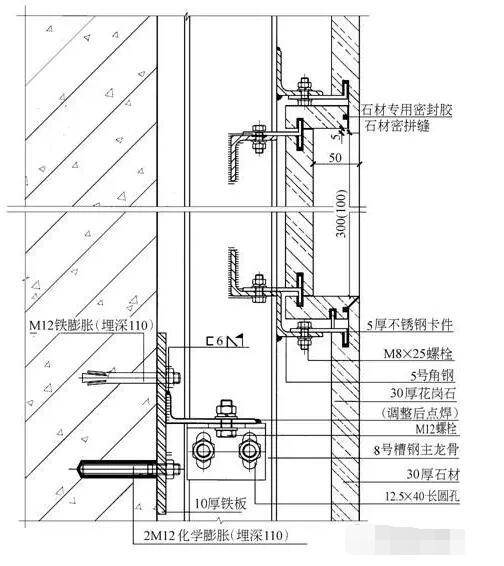
  图3-117 石材幕墙竖剖节点

 

  图3-118石材幕墙与玻璃幕墙加接竖剖节点

 

  图3-119 石材幕墙顶部收口节点

 

  图3-120 玻璃幕墙与石材幕墙包梁部位连接节点

 

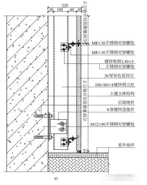
  图3-121 干挂花岗石幕墙底部收口节点

 

  图3-122 石材幕墙线条竖剖节点

 

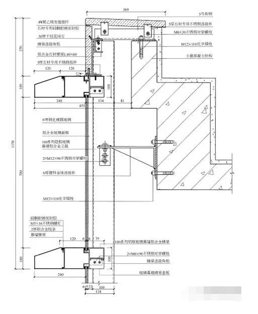
  图3-123 微晶玻璃与幕墙框架系统的连接

   图3-124 微晶玻璃与幕墙框架系统的连接

  图3-125 微晶玻璃与幕墙框架系统的连接

  图3-126 微晶玻璃与幕墙框架系统的连接

  图3-127 蝴蝶钩连接

  图3-129 L形钩连接

  图3-128 钢销式连接

  图3-130 K型背栓式连接

  图3-131 K型背栓式连接

  图3-132 J型背栓式连接

  图3-133 H型挂件连接

  图3-134 H型挂件连接

  图3-135 H型锚栓耳挂件连接

  图3-136背槽式连接连接

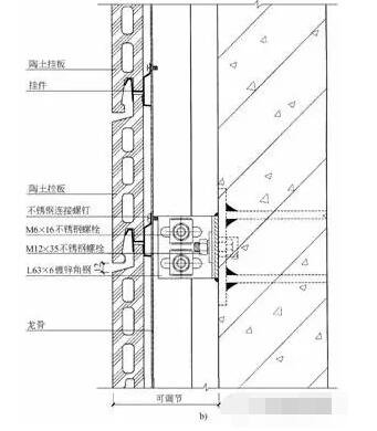
  图3-137a陶土板横剖节点

  图3-137b 陶土板竖剖节点

  图3-137c 陶土板转角节点

门窗幕墙第一手资讯! 上中国幕墙网 news.alwindoor.com 手机访问地址 3g.alwindoor.com

原文地址:http://www.52mqw.com/info/2018-2-9/44298-1.htm
转载时需注明出处:中国幕墙网 点击查看 www.alwindoor.com
我要评论 (已有*人参与评论)
上一篇:2018会涨价吗?当前各种幕墙“设计价格”曝光
    
【回到顶部】
  为了帮助建筑门窗幕墙行业产业链企业更好的认清行业地位和现状,从而提升自身产品品质及服务能力,中国幕墙网以行业媒体领军者的身份,在...
[正文]  [评论]

中国幕墙网版权和免责声明

版权声明: 本网站所有文章版权,归中国幕墙网和作者所共有,未经允许请勿转载。

转载要求: 转载的图片或者文件,链接请不要盗链到本站,且不准打上各自站点的水印,亦不能抹去本站水印。

隐私条款: 除非特别声明,否则文章所体现的任何观点并不代表中国幕墙网。
本站转载或引用文章若涉及版权问题请与我们联系,我们立即将其删除!

月精彩评论集锦
知识百科
月热点新闻推荐[TOP10]
月企业关注度排名[幕墙]
月产品人气值排名[幕墙]
客服电话:400-60-54100  传真:0832-2201099 值班电话:15023154960